Prenumerera på statistik
Få månatlig statistik och marknadsanalys för Uppsala levererad direkt till din e-post. Kostnadsfritt.

Fyll i ett enkelt formulär om din bostad. Vi matchar dig med passande mäklare i ditt område – helt kostnadsfritt och utan förpliktelser.
Fyll i formulär, få mäklarförslag. Kostnadsfritt från SBAB och Booli.
1. Din bostad
2. Matchning
3. Välj mäklare
En tjänst från SBAB och Booli

Luthagen
Seminariet
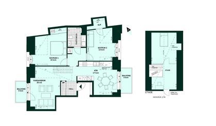
Lägenhet
8 250 000 kr
3 rum
6114 kr/mån
111 m2
Bonava
Laddar marknadsanalys...
Q1 2020 - Q1 2026
Typ
Område
Avgift
6 114
kr/mån
Rum
3
rum
Boarea
111
m²
Utropspris
8 250 000
kr
Våning
4
Publicerad
2025-10-03
Mäklare
Bonava
URL
Lägenhet i Uppsala - Luthagen
Bostadens värde
8 250 000
kr
Kontantinsats (30%)
2 475 000
kr
Ränta
2.75
%
Boendekostnad per månad
19 348 kr
Din månadskostnad blir 19 348 kr
Baserat på en kontantinsats på 30% och en ränta på 2.75%.
Tänk på att saker som vatten, el, försäkringar, underhåll etc. tillkommer.
Läs mer om bolån
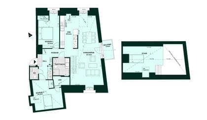
9 bostäder till salu
Sida 1 av 1 - visar 1-9

Fyll i ett enkelt formulär om din bostad. Vi matchar dig med passande mäklare i ditt område – helt kostnadsfritt och utan förpliktelser.
Din bostad
→
Matchning
→
Välj mäklare
En tjänst från SBAB och Booli