Nyhetsbrev
Få senaste nytt om bostadsmarknaden i Lomma en gång i månaden. Kostnadsfritt.
En korrekt e-postadress krävs

Hitta rätt mäklare för dig och din bostad med SBAB:s tjänst HittaMäklare – helt kostnadsfritt och utan förpliktelser. Spara tid och pengar genom att snabbt hitta mäklaren som passar just dig!

Lägenhet
3 795 000 kr
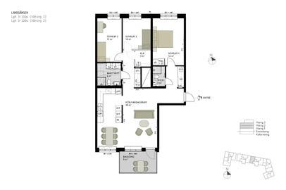
4 rum
7524 kr/mån
101.5 m2
Bjurfors
Är det här en bostad du säljer? Öka synligheten för din annons med Premium
Q1 2020 - Q4 2025
Typ
Område
Bjärred
Avgift
7 524
kr/mån
Rum
4
rum
Boarea
101.5
m²
Utropspris
3 795 000
kr
Byggår
2000
Våning
4
(Hiss finns)
Balkong
Ja
Publicerad
2025-11-26
Elbehov (uppskattat)
5 024 kWh/år
Mäklare
URL
Lägenhet i Lomma - Bjärred
Bostadens värde
3 795 000
kr
Kontantinsats (30%)
1 138 500
kr
Boendekostnad per månad
13 612 kr
Din månadskostnad blir 13 612 kr
Baserat på en kontantinsats på 30% och en ränta på 2.75%.
Tänk på att saker som vatten, el, försäkringar, underhåll etc. tillkommer.
Läs mer om bolån
7 bostäder till salu
Sida 1 av 1 - visar 1-7
Vill du sälja eller värdera din bostad?
HittaMäklare matchar dig med rätt mäklare för just din försäljning. Kostnadsfritt och utan förbindelse. En trygg och enkel tjänst från SBAB.